1911.E_CENTRE SOCIAL DE SANTS
Rehabilitació integral de l’edifici del Centre Social de Sants
Autors: LAOS + Mercè Zazurca + César Sánchez
Col·laboradors: BBG (estructura)
TDI (enginyeria)
Joan Olona (arq. tècnic)
Promotor: BIMSA (Ajuntament de Barcelona)
Emplaçament: Carrer d’Olzinelles 30, Barcelona
Concurs: 2019
Projecte: 2019 - 2025
Fotografies: José Hevia
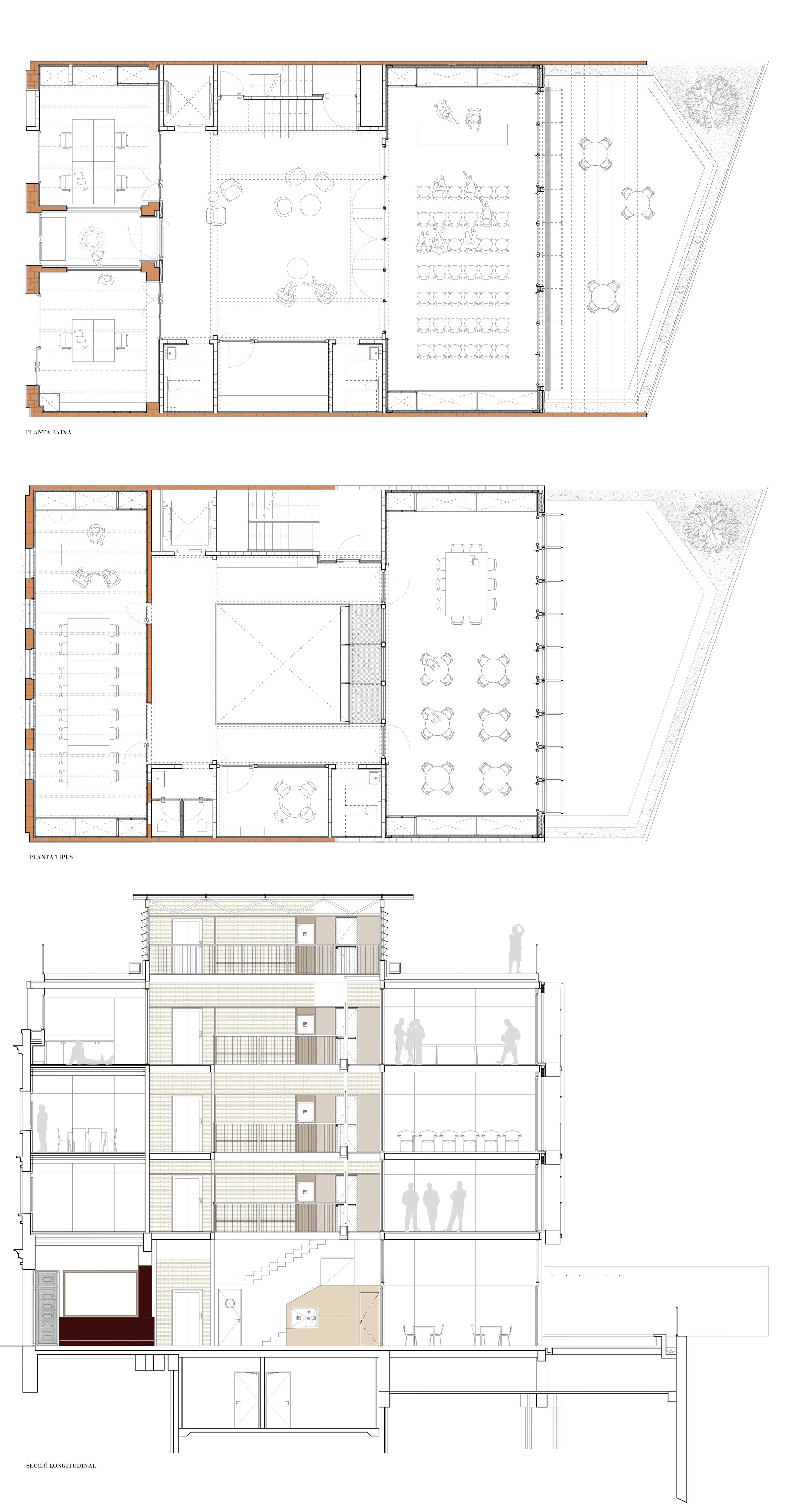
Degut a l’estat de l’edifici original juntament amb la voluntat de millorar l’il·luminació natural dels espais interiors, la ventilació, les circulacions interiors i la flexibilitat dels espais, es va proposar conservar únicament la façana i la primera crugia de l’edifici, ja que era la única que presentava una certa consistència estructural i formal sense desnivells, el que ha fet factible la seva conservació.
L’element central del projecte és la creació d’un gran pati interior cobert que funciona com a atri climàtic i espai de relació. Aquest pati actua com a nucli de distribució, donant accés a tots els espais i sales, que s’organitzen al seu voltant. La nova construcció s’ha executat amb una estructura metàl·lica i forjats formats per panells de fusta massissa CLT, una solució que ha permès minimitzar les intervencions en la fonamentació existent.
La façana de la remunta s’ha resolt mitjançant una composició respectuosa, amb un retranqueig cap a l’interior que genera una successió de jardineres. Aquesta solució estableix un diàleg equilibrat amb la façana original, aconseguint una síntesi harmònica entre el patrimoni existent i una arquitectura contemporània i sostenible.
Aquesta actuació, conjuntament amb la restauració de la façana original —que recupera els seus valors arquitectònics alhora que incorpora noves fusteries i un major nivell d’aïllament—, contribueix a millorar significativament l’eficiència energètica, així com la imatge i la volumetria del conjunt edificat.
El nou Centre Social de Sants guanya en transparència, permeabilitat i flexibilitat d’ús afavorint la connexió de l’equipament amb l’espai públic, funcionant la seva prolongació mitjançant els patis de la planta baixa, tant el central com el posterior.
